Informativa sintetica sui cookie
Questo sito Internet utilizza cookie "tecnici" e di "terze parti" per arricchire la navigazione e migliorare l'esperienza d'uso, per saperne di più consulta l'informativa estesa.

Forte Mare Immobiliare s.a.s. - Via Mazzini, 117 - 55042 Forte dei Marmi (LU) - Tel.: 0584 1781788 - Email: info@fortemareimmobiliare.it
Rif. 4406
Pagina precedente

Casa quadrifamiliare in vendita

Montignoso - Cinquale

€ 660.000

Descrizione

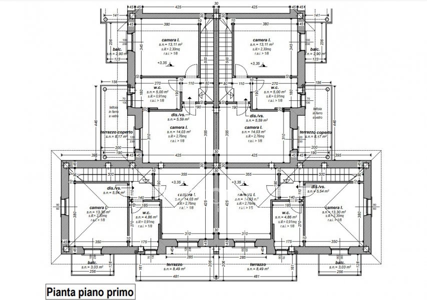
Trattasi di un complesso residenziale costituito da 10 villette tipologia terra/tetto. Ciascuna villetta ha ingresso indipendente ed esclusivo ed ha giardino di proprietà esclusiva con posti auto interno. Piano terra composta da soggiorno, cucina abitabile, bagno, locale tecnico con possibilità di realizzare camera da letto. Piano primo 2 camere da letto, bagno. 5- Euro 670.000 7- Euro 660.000 9- Euro 750.000 10- Euro 760.000 OLTRE IVA

Caratteristiche

Superficie 110 m2
Piano p1
Ascensore no
Camere 3
Bagni 2
Garage posti auto
Cantina no
Riscaldamento autonomo
Giardino 300 m2
Classe energetica A+
I.P.E. 12,15 kWh/m2anno
Condividi

Richiedi maggiori informazioni

Contattaci ai seguenti recapiti o compila il form per ricevere maggiori informazioni.

Forte Mare Immobiliare s.a.s.0584 1781788329 637 6326